Concept Sketch Session

This session converts your site photos or existing plans into structured, buildable concept options — with cost and performance consequences identified in real time.

Before you engage an architect.
Before you commit to drawings.
Before money starts leaking.

We sketch live.
We test ideas immediately.
We remove risk early.

A detailed architectural landscape design plan showing a 3D model of a building with surrounding landscaping, trees, pathways, and fencing. The plan includes annotations, color-coded elements, and various design layers.

Who This Is For

This session is suited to:

  • Clients with a block of land but no plans

  • Clients with early concept plans that “don’t feel right”

  • Clients wanting Passive House or performance upgrades

  • Renovations and extensions where layout efficiency matters

  • You have an idea in your head and want to see what it looks like

  • Projects at risk of cost blowout

If you’re looking for drafting or free design, this is not that.

What You Receive

  • PDF export of all concept sketches

  • Marked-up annotated options

  • Identified technical risks

  • Recommended direction

  • Clear next-step pathway

This is not construction documentation.

This is decision intelligence.

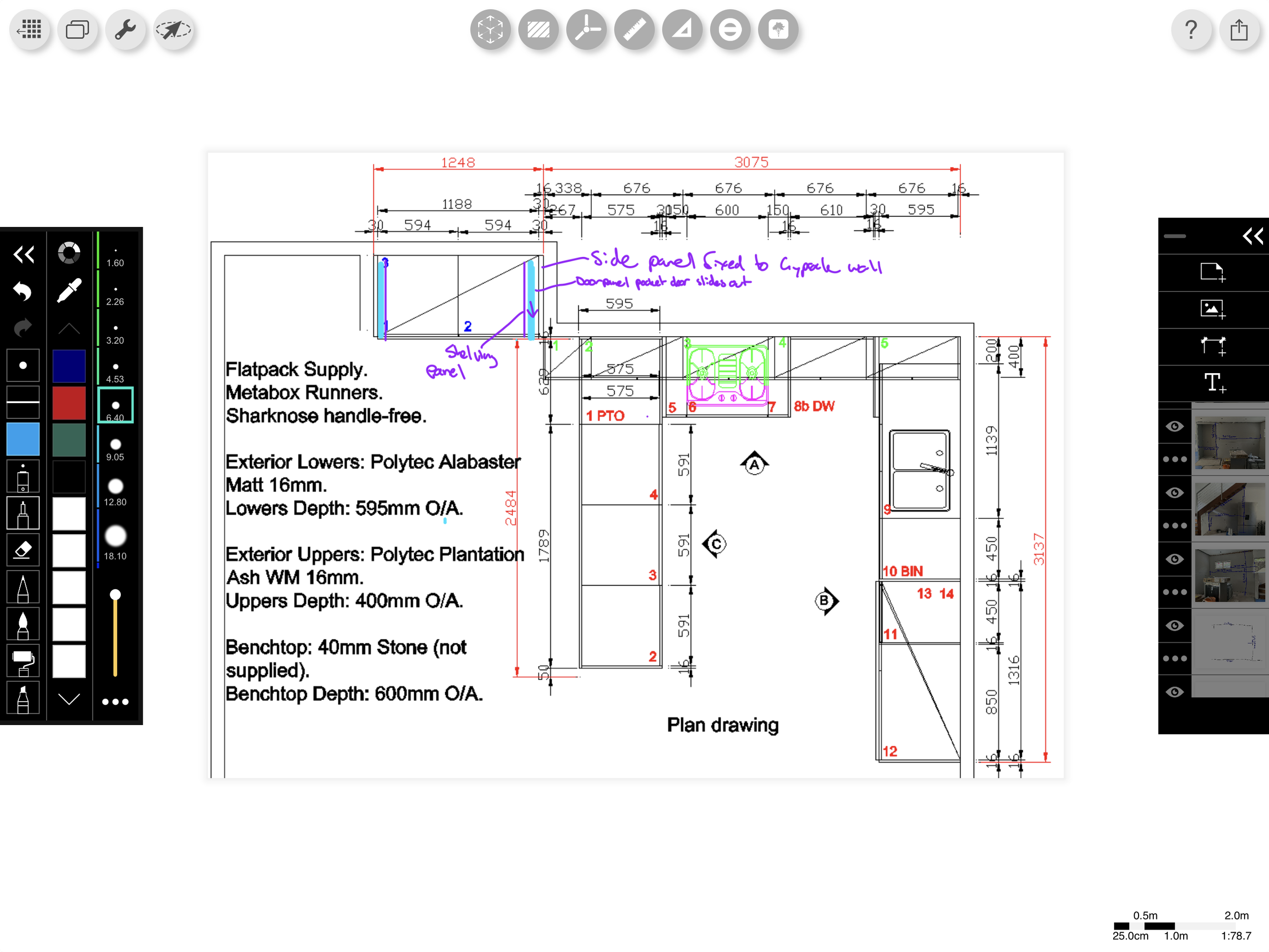
A detailed architectural plan drawing of a kitchen or workspace with measurements, annotations, and labels, including notes about wall panels, lower and upper exterior wall materials, and benchtop specifications.

What Happens In The Session

Duration: 90 minutes (minimum)

30 mins consultation 60 mins drawing time

Using Morpholio Trace, we work directly over:

  • Site photos

  • Existing PDF plans

  • Survey drawings

We generate 2–4 concept iterations live.

We overlay:

  • Buildability logic

  • Structural simplification

  • Envelope feasibility

  • Orientation strategy

  • Wet area rationalisation

  • Cost risk flags

  • Passive House potential

Decisions are made in real time.

Design Direction

Stage 1 - Concept Session

90-Minute Live Working Session

Includes:

  • Live Morpholio sketching over site photos or plans

  • 2–4 concept variations

  • High-level buildability commentary

  • PDF export of marked sketches

  • Written summary + next steps

Investment: $950 + GST

Ideal for early direction and layout testing.

What This Is Not

  • It is not drafting.

  • It is not DA documentation.

  • It is not engineering.

  • It is not a free design consultation.

This is a strategic working session.

Why Do This Before Design?

Because:

  • Changing lines on a sketch costs nothing.

  • Changing drawings costs thousands.

  • Changing construction costs tens of thousands.

We control variables early.

Typical Outcomes

Clients often discover:

  • Their original layout adds unnecessary cost.

  • A minor adjustment dramatically improves energy performance.

  • A different roof form simplifies structure.

  • A window relocation improves solar gain and reduces overheating.

  • Their current concept is over complicated.

Better to discover this now — not after thousands have been spent on drawings.


Call To Action

Book A Concept & Feasibility Sketch Session

Bring:

  • Site photos

  • Existing plans (if any)

  • Survey (if available)

  • Any inspiration